(仮称)新町5丁目計画新規計画物件

- 所在地
- 西東京市新町5-18
- アクセス
- 武蔵境駅から関東バス、「事務本部駅」下車1分
- 募集科目
- 3科目誘致
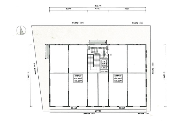
- 面積
- 2階38坪2区画
- 入居可能時期
- 2027年1月
- 更新日
- R8/1/28
特長
- 半径500メートルのなかで約3000戸近い世代の方の来院が見込める好立地!
物件の詳細
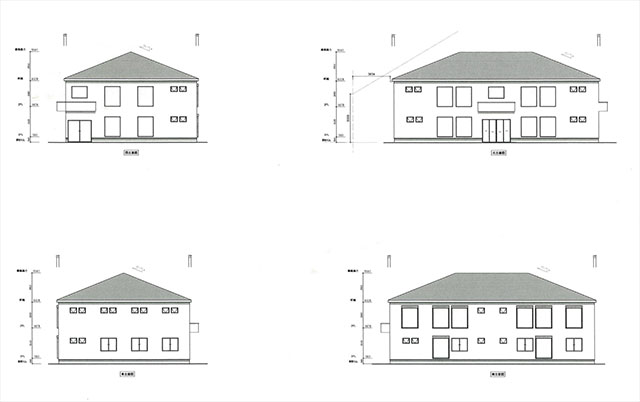
- 構造
- 2階建て案
- プラン
- 2F:クリニック(2科)
- 募集科目
- 3科目誘致
- 募集区画
- 2階38坪の2区画
- 引き渡し条件
- スケルトン
- 契約形態
- 定期建物賃貸借契約書/20年
- 賃料・共益費
- 2階・13,000円/坪(共益費は賃料込み)
募集中の間取り図




アクセス
- 所在地
- 西東京市新町5-18
- アクセス
- 武蔵境駅から関東バス、「事務本部駅」下車1分
診療圏情報
現在1階には糖尿病内科の先生が内定、1階の内科の隣には薬局が内定しております。
この度の募集区画は2階38坪の2区画です。
お家賃は共益費込で坪単価13,000円を想定しております。
駐車場はクリニック専用が約10台、1台あたり10,000円を想定。(隣接地にはコインパーキングが約20台)
こども食堂と図書館、隣接してキッチンカーを並べ地域のコミュニティスペースになる予定です。
近隣の桜堤2丁目にございますパークシティ武蔵野桜堤(405戸)、パークシティ武蔵野桜堤桜景邸(145戸)、桜堤庭園フェイシア(292戸)、桜堤庭園テラス(230戸)などのマンション群に加えサンヴァリエ桜堤都営団地(1120戸)、西東京市のヴィーガーデン(796戸)も合わせますと半径500メートルのなかで約3000戸近い世代の方の来院が見込める場所でございます。
近隣半径1キロには内科消化器、小児科、整形外科があり、それ以外の皮膚科、泌尿器科、耳鼻科、眼科あたりがよいとみております。
竣工予定は2026年12月ですのでご開業は2027年4月くらいになる予定です。
